Peugeot 205 XR z Kielc

Prezentacje posiadanych 205tek, krótkie opisy, historia i zdjęcia posiadanych samochodów.
Awatar użytkownika
helterskelter
Junior
Posty: 194
Rejestracja: 31 lip czw, 2008 6:02 pm
Posiadany PUG: 205 xad lux; 205 GTI export
Numer Gadu-gadu: 0
Lokalizacja: WP

Re: Peugeot 205 XR z Kielc

Post autor: helterskelter »

miankowy pisze:to prawda, kabel masowy z kostki (trzy pinowej) małej żółtej smaży się po włączeniu świateł i przepala się bezpiecznik od podświetlenia deski i postojówek
dużą kostkę (dziesięć pinów) żółtą wymieniliśmy i dorobiliśmy zjarany pin, po odcięciu tego masowego (zjaranego) przewodu z małej kostki i włożeniu nowego bezpiecznika są światła ale nie ma podświetlenia deski
nie ogarniam dlaczego to się topi 8)7 nie ma napięcia na tym pinie podpięty jest do tego rozgałęźnika masowego przy kolumnie i co ciekawe nie topią się inne masowe kable z tego rozgałęźnika tylko ten jeden....
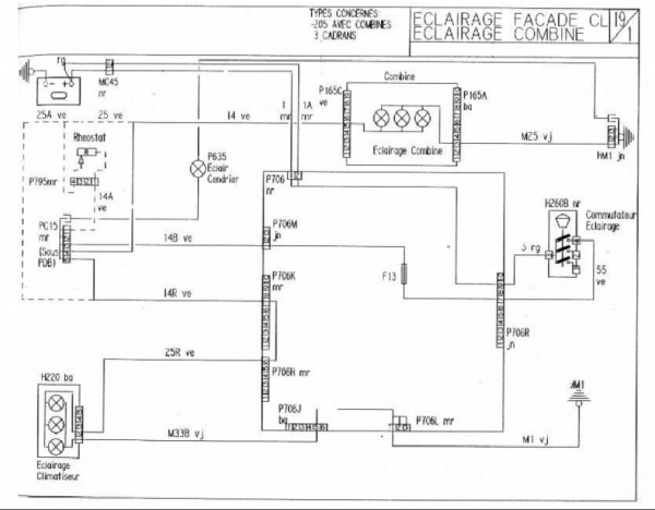
Gwoli wyjaśnienia to zielony kabel w 3-pinowej żółtej kostce (na schemacie nr P706M) to nie masa tylko plus, który pojawia się po włączeniu świateł pozycyjnych. Oto schemat:
oświetlenie_wnętrze.png
Kabel idzie do brązowej kostki PC15 (to nie jest kostka masowa). Wszystko to, co do niej podłączone (m.in. oświetlenie tablicy) dostaje "plusa" po włączeniu świateł pozycyjnych.
Jeśli dodaliście gdzieś tam masę, to nic dziwnego, że przewód się zaczyna topić i wywala bezpiecznik.
Awatar użytkownika
mlody333
Uzalezniony
Posty: 946
Rejestracja: 23 cze sob, 2012 4:39 pm
Posiadany PUG: Był 205, 307 jest 106 TU1JP oraz 207 TU5JP4
Numer Gadu-gadu: 0
Lokalizacja: Kielce

Re: Peugeot 205 XR z Kielc

Post autor: mlody333 »

jarema205 pisze:Orientuję się ktoś ile kosztuje wymiana progu?
Niestety jednego progu praktycznie już nie mam- można go od spodu przebić palcem, ale zimę powinien wytrzymać :)
Coś nie mogę znaleźć godnej 205, albo trafiam na paście albo co lepsze sztuki ktoś sprząta mi sprzed nosa :N
Chyba pisany jest mi ten XR 8)7
Deska jeszcze nie złożona, ale elektryka ogarnięta- do 6 września muszę poskładać wszystko do kupy :)
Ciągle się zastanawiam czy szukać nowego Puga czy dalej ładować kasę w XR-ka?
Po raz 50-ty szukaj innego!!!! /na marginesie ja też się rozglądam/. Pytałeś o tego z Jarosławia?? W CK wiem o 205 w dieslu,podobno ładna ale nie oglądałem go.
Awatar użytkownika
jarema205
Maniak
Posty: 1068
Rejestracja: 08 wrz sob, 2012 7:58 pm
Posiadany PUG: GTI, CJ, XR, XRD, XRD, LOOK
Numer Gadu-gadu: 0
Lokalizacja: Kielce

Re: Peugeot 205 XR z Kielc

Post autor: jarema205 »

mlody333 pisze:
W CK wiem o 205 w dieslu,podobno ładna ale nie oglądałem go.
Hahahahahahaahahahahahahahahah 8)7
Ładna, to mało powiedziana :D
Oglądałem, zaraz wrzucę foty :wink:
XR in PROGRESS :D
Awatar użytkownika
KrakerSx
Uzalezniony
Posty: 624
Rejestracja: 09 kwie śr, 2008 1:39 pm
Posiadany PUG: 205 Roland Garros 92'
Numer Gadu-gadu: 0
Lokalizacja: Lublin
Kontakt:

Re: Peugeot 205 XR z Kielc

Post autor: KrakerSx »

Weź go sam pomaluj na pewno gorzej nie będzie potem do Lublina na detailing ;)

Jak to mówią kupić auto to najmniejszy wydatek bo potem trzeba go utrzymać.
Jak chcesz kolejnego kłopotu to zostań przy jednym.
Weź kredyt studencki i skończ go a będzie Ci służył.
Albo jeździć takim, w końcu w kraju są gorsze sztuki wiec nie ma się czym martwić.

:W
Awatar użytkownika
jarema205
Maniak
Posty: 1068
Rejestracja: 08 wrz sob, 2012 7:58 pm
Posiadany PUG: GTI, CJ, XR, XRD, XRD, LOOK
Numer Gadu-gadu: 0
Lokalizacja: Kielce

Re: Peugeot 205 XR z Kielc

Post autor: jarema205 »

Postępów w składaniu deski brak 8)7 za to problemów nowych coraz więcej :evil:
Ktoś wie co oznacza ta kontrolka? Coraz częściej zapala mi się podczas jazdy.
Aha, po rozebraniu deski zapal mi się jeszcze kontrolka z akumulatorem- tylko przy cofaniu, ruszaniu i jeździe z prędkością żółwia.
CAM00473.jpg
BTW- używał ktoś kiedyś takiego specyfiku?
http://www.ceneo.pl/13255772#tab=click_scroll
Ewentualnie możecie coś polecić do samodzielnego prania tapicerki?
XR in PROGRESS :D
robson
Peugeot 205 Master
Posty: 2904
Rejestracja: 03 paź wt, 2006 6:27 pm
Numer Gadu-gadu: 0

Re: Peugeot 205 XR z Kielc

Post autor: robson »

Kontrolka diagnostyczna (ECU i sonda lambda) :W
Załączniki
20140823_165800.jpg
20140823_165832.jpg
Ostatnio zmieniony 23 sie sob, 2014 5:03 pm przez robson, łącznie zmieniany 2 razy.
Awatar użytkownika
dexen
Junior
Posty: 453
Rejestracja: 23 paź ndz, 2011 4:12 pm
Posiadany PUG: XS '91r; Xsara VTS '00r
Numer Gadu-gadu: 3222175
Lokalizacja: Szczecin

Re: Peugeot 205 XR z Kielc

Post autor: dexen »

jarema205 pisze:Postępów w składaniu deski brak 8)7 za to problemów nowych coraz więcej :evil:
Ktoś wie co oznacza ta kontrolka? Coraz częściej zapala mi się podczas jazdy.
12. Kontrolka diagnostyczna (ECU i sonda lambda)

czyli komputer sygnalizuje, że wykrył błąd jakiegoś czujnika lub obwodu. Zrób odczyt błędów.

jarema205 pisze:Aha, po rozebraniu deski zapal mi się jeszcze kontrolka z akumulatorem- tylko przy cofaniu, ruszaniu i jeździe z prędkością żółwia.
Kontrolka świeci się wtedy, gdy alternator daje mniej prądu niż reszta auta pobiera. Albo podłączyłeś coś bardzo `prądożernego', albo kończy Ci się alternator, lub jego regulator napięcia. Ewentualnie pasek klinowy się ślizga, ale to byś raczej usłyszał.
return -ENOCOMPREHEND; || my other ride is a Kerbal Space Program rocket ^^
Awatar użytkownika
jarema205
Maniak
Posty: 1068
Rejestracja: 08 wrz sob, 2012 7:58 pm
Posiadany PUG: GTI, CJ, XR, XRD, XRD, LOOK
Numer Gadu-gadu: 0
Lokalizacja: Kielce

Re: Peugeot 205 XR z Kielc

Post autor: jarema205 »

helterskelter i daxen- dziękuję za rzetelne informacje _O_
Jak będę miał chwilę wolnego, to będziemy działać dalej :Y
XR in PROGRESS :D
Awatar użytkownika
jarema205
Maniak
Posty: 1068
Rejestracja: 08 wrz sob, 2012 7:58 pm
Posiadany PUG: GTI, CJ, XR, XRD, XRD, LOOK
Numer Gadu-gadu: 0
Lokalizacja: Kielce

Re: Peugeot 205 XR z Kielc

Post autor: jarema205 »

Utwierdzam się w przekonaniu, że każdy dobry uczynek spotka zasłużona kara 8)7
Ostatni raz dałem się przejechać siostrze swoim samochodem 8)7
Załączniki
10643197_829661560399111_1893140949_n.jpg
10656293_829661577065776_1389289068_n.jpg
10656675_829661550399112_465371935_n.jpg
10660657_829661537065780_968844962_n.jpg
10660715_829661610399106_1859908644_n.jpg
XR in PROGRESS :D
Awatar użytkownika
krzyska
Peugeot 205 Master
Posty: 2097
Rejestracja: 02 paź pt, 2009 9:49 pm
Posiadany PUG: Forever, Griffe, Honda CB125Twin 1978, Alfa Romeo 147JTDm, P207UjemnieDynamiczny, Patriot KS90
Numer Gadu-gadu: 0
Lokalizacja: okolice Kruszwicy

Re: Peugeot 205 XR z Kielc

Post autor: krzyska »

to on taki nie był? :twisted:
GTI_Efekt Masy Obrazek
Awatar użytkownika
jarema205
Maniak
Posty: 1068
Rejestracja: 08 wrz sob, 2012 7:58 pm
Posiadany PUG: GTI, CJ, XR, XRD, XRD, LOOK
Numer Gadu-gadu: 0
Lokalizacja: Kielce

Re: Peugeot 205 XR z Kielc

Post autor: jarema205 »

krzyska pisze:to on taki nie był? :twisted:
Było trochę lepiej :P 8)7
XR in PROGRESS :D
Awatar użytkownika
mlody333
Uzalezniony
Posty: 946
Rejestracja: 23 cze sob, 2012 4:39 pm
Posiadany PUG: Był 205, 307 jest 106 TU1JP oraz 207 TU5JP4
Numer Gadu-gadu: 0
Lokalizacja: Kielce

Re: Peugeot 205 XR z Kielc

Post autor: mlody333 »

W ramach sztorcowania bryki do Katowic dałeś go siostrze 8)7 . Na Twojego Puga ktoś rzucił przekleństwo. Ma małego Puga Woodoo i od czasu do czasu dźga go szpilami i rzuca o podłogę :mrgreen:
Awatar użytkownika
krzyska
Peugeot 205 Master
Posty: 2097
Rejestracja: 02 paź pt, 2009 9:49 pm
Posiadany PUG: Forever, Griffe, Honda CB125Twin 1978, Alfa Romeo 147JTDm, P207UjemnieDynamiczny, Patriot KS90
Numer Gadu-gadu: 0
Lokalizacja: okolice Kruszwicy

Re: Peugeot 205 XR z Kielc

Post autor: krzyska »

nie ważne jak, byle szajswagena
GTI_Efekt Masy Obrazek
Awatar użytkownika
mulec
Junior
Posty: 241
Rejestracja: 07 sty wt, 2014 8:29 pm
Posiadany PUG: 205 1.1 XR (91'), 205 1.8D Mito (95')
Numer Gadu-gadu: 0
Lokalizacja: Kraków

Re: Peugeot 205 XR z Kielc

Post autor: mulec »

ważne że światła działają :P
Awatar użytkownika
jarema205
Maniak
Posty: 1068
Rejestracja: 08 wrz sob, 2012 7:58 pm
Posiadany PUG: GTI, CJ, XR, XRD, XRD, LOOK
Numer Gadu-gadu: 0
Lokalizacja: Kielce

Re: Peugeot 205 XR z Kielc

Post autor: jarema205 »

Utwierdzam się w przekonaniu, że mój Pug jest nie do ogarnięcia 8)7
Dzisiaj znowu mnie zaskoczył, tym razem pozytywnie :D

Zaraz po wymianie deski przestała działać nagrzewnica- rano działała, wieczorem już nie i tak jej zostało.
Diagnoza- trzeba ściągać plastiki i sprawdzać wszystko po kolei, bo coś jest zje!@#$.
Powiedziałem, że mam już dosyć "zabawy z deską" i pier!@#$% może nie działać 8)7

Jeździłem tak aż do dziś, bo dziś moja wspaniała nagrzewnica naprawiła się sama z siebie, po prostu wzięła i zaczęła działać :D
Zaczyna mi się to podobać- samo się popsuło i samo się naprawiło :mrgreen: 8)7


Z bardziej przyziemnych spraw, to w ostatnim czasie zakupiłem do XR-ka nowe drzwi, klapę i błotniki*
Wymieniłem też szybę szyberdachu, ale szyber nadal się zacina, okazuję się, że brakuję jednej blaszki, a listwa była na klej.
Poza tym jeżdżę praktycznie bezawaryjnie 8)
W poniedziałek czeka nas wycieczka do lublina, a we wtorek do warszawy, mam pewne obawy, ale sądzę, ze XR-ek nie nawali i jak zwykle się uda O-)
XR in PROGRESS :D
ODPOWIEDZ